EURO 45.000

Via della Chiesa 2, Treppo Ligosullo
5
1
1
1480 mq
173 mq

DESCRIZIONE

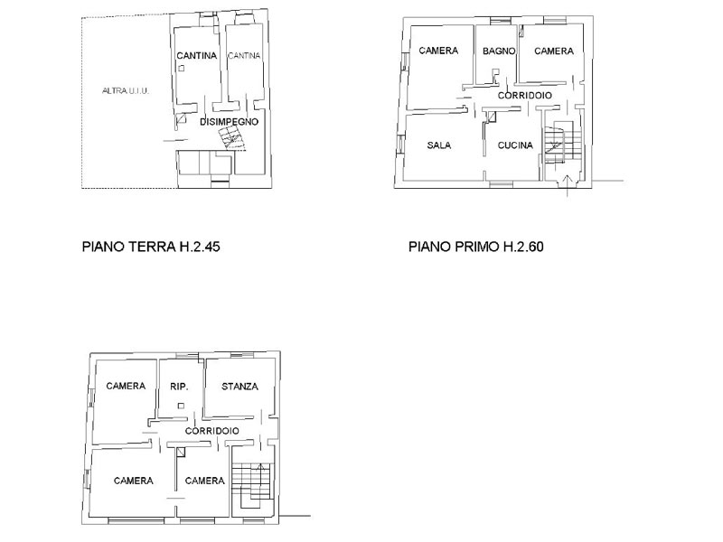
Casa unifamiliare in linea posta nel centro storico di Ligosullo su tre piani fuori terra così composta: al Piano Terra l'autorimessa, due cantine e un disimpegno, al Piano Ammezzato primo l'ingresso dell'abitazione, al Piano Primo il corridoio, la cucina abitabile, il soggiorno, una camera matrimoniale, un bagno e una camera singola, al Piano Secondo Sottotetto, un corridoio e cinque locali rifiniti “al grezzo”. Fabbricato ricostruito alla fine degli anni 1960.Non è dotato di impianto di riscaldamento. L'acqua calda sanitaria del bagno è garantita da boiler a legna. La superficie indicata e' comprensiva dei muri perimetrali ed interni.

CLASSE ENERGETICA G Epgl 452 kwh/mq annui

NO SPESE DI INTERMEDIAZIONE IMMOBILIARE!!! ACQUISTO DIRETTAMENTE DAI PROPRIETARI!!

Peculiarità esterne

  • Giardino
Facebook Twitter Google Pin it

Contatto veloce

Do not fill this field in

Do not fill this field in

I tuoi dati personali verranno utilizzati per supportare la tua esperienza in questo sito Web, per gestire l'accesso al tuo account e per altri scopi descritti nella nostra politica sulla privacy.